If you have ever stepped into the world of construction, you have probably heard the term MEP drawings tossed around like confetti. But you might not know exactly what these drawings entail unless you are knee-deep in blueprints and ductwork. Worry not, this blog will unravel the mystery of MEP drawings, why they matter, and the different types that bring order to the beautiful chaos of construction projects. Whether you are an aspiring engineer, a design enthusiast, or just curious about MEP works in construction, this guide is for you!
What Are MEP Drawings and Why Are They Important?
Before diving into the types, let us first understand the basics. So, what is MEP in construction? The term MEP stands for Mechanical, Electrical, and Plumbing. These three disciplines form the backbone of modern infrastructure. MEP drawings are detailed plans that show how these systems are integrated into a building.
They are not just pretty pictures; these drawings are critical tools that ensure the smooth execution of MEP projects. Think of them as the instruction manual that guides contractors, engineers, and technicians to get everything in the right place, at the right time, using the right components.
From heating and cooling systems to lighting layouts and drainage networks, MEP drawings are essential for maintaining functionality, safety, and compliance with building regulations. In short, they bring together the work of MEP engineers, architects, and consultants into a single, coordinated masterpiece.
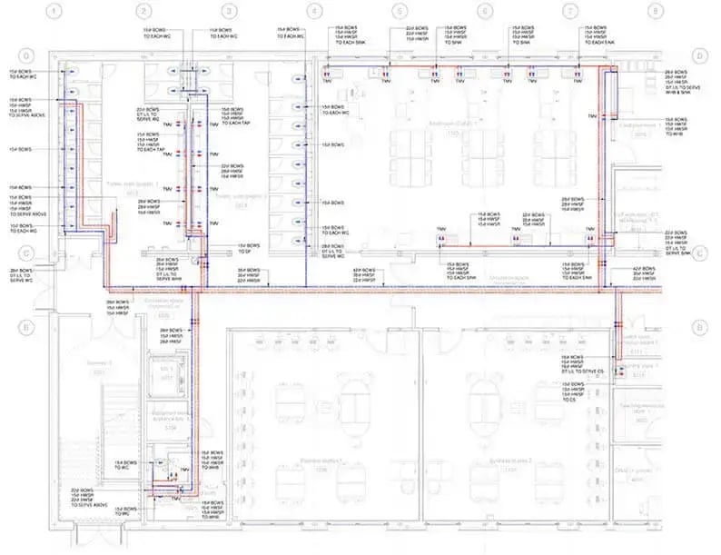
Types of MEP Drawings in Construction Projects
Let us now explore the fascinating variety of MEP drawings that breathe life into construction sites. Each type serves a specific purpose and is vital in ensuring the building operates efficiently and safely.
1. Mechanical Drawings
Mechanical systems include heating, ventilation, and air conditioning, collectively known as HVAC. These drawings detail duct layouts, ventilation points, chiller units, and thermal zones. A MEP design must account for airflow, energy efficiency, and indoor comfort. With the help of Revit MEP software, mechanical drawings now come alive in 3D, making it easier for teams to visualise the final result.
Mechanical MEP drawings ensure that the air you breathe is clean, the rooms are adequately heated or cooled, and the equipment runs efficiently. No more sweating in summer or freezing in winter, thank the MEP industry for that!
2. Electrical Drawings

From lighting and wiring to fire alarms and security systems, electrical drawings are the lifeblood of a building’s power infrastructure. They include circuit diagrams, panel board layouts, and cable tray routes.
Professionals use MEP drawing software like AutoCAD MEP and Revit MEP to map out how electricity will flow through a building. These drawings are essential to avoid short circuits, overloads, or system failures. They also help electricians and MEP technicians install equipment safely and correctly. Whether it is a smart home or a corporate high-rise, you can bet that a solid electrical MEP drawing is behind it all.
Also Read: 10 Essential Skills Every MEP Engineer Needs to Master
3. Plumbing Drawings

Water, waste, and everything in between, plumbing drawings are all about managing the flow of liquids and gases. They include pipe layouts, water supply systems, drainage lines, and sewage disposal.
Plumbing MEP drawings are crucial to prevent leaks, contamination, and flooding. They also ensure water efficiency and sustainability. Modern BIM MEP services use BIM software to simulate water flow and pressure, making troubleshooting a breeze. Whether you are taking a shower or flushing the loo, you are enjoying the fruits of thoughtful MEP design.
4. Fire Fighting Drawings
Safety first! Fire-fighting MEP drawings are life-saving blueprints that show the location of sprinklers, fire hydrants, extinguishers, smoke detectors, and fire alarm systems. These drawings follow strict safety codes and standards.
With the help of Revit MEP and other MEP drawing software, fire-fighting layouts are integrated into the building’s overall plan. This coordination helps emergency systems work flawlessly when needed most. You may not see it, but these systems are silently standing guard every second of the day.
5. Coordination Drawings
Construction sites are bustling places with different teams working simultaneously. Without proper coordination, chaos can quickly erupt. Enter coordination drawings.
These MEP drawings bring together mechanical, electrical, plumbing, and fire systems in one holistic view. They help identify clashes and resolve conflicts before construction begins. For instance, if a duct and a pipe are set to occupy the same space, coordination drawings will catch it early.
Thanks to BIM MEP services, coordination is easier than ever. Clash detection tools in BIM software save time, money, and lots of headaches. The result? A streamlined project that runs like a well-oiled machine.
Also Read: Top 50 MEP Interview Questions & Answers 2026
6. As-Built Drawings
Once construction wraps up, it is time to reflect reality. As-built MEP drawings are updated versions of the original plans, showing the final installation as it actually occurred.
They are invaluable for facility management, maintenance, and future renovations. If a building owner wants to replace a chiller unit or reroute plumbing, these drawings tell them exactly what is behind the walls. As-built drawings are like a building’s medical records, accurate, updated, and indispensable.
Also Read: Future of MEP Engineering: AI in MEP Engineering & Design
How MEP Drawings Ensure Project Accuracy and Efficiency
The power of MEP drawings lies in their ability to guide complex systems into seamless harmony. By creating a visual language that everyone on site understands, they reduce errors, delays, and misunderstandings.
When supported by cutting-edge BIM software and platforms like Revit MEP, these drawings offer dynamic 3D models that simulate building performance. They help engineers forecast energy usage, detect clashes, and refine designs—all before a single brick is laid.
Familiarity with tools like Revit MEP and AutoCAD is a huge plus for those seeking MEP engineer jobs. The demand for skilled professionals in the MEP industry is skyrocketing, especially in design, modelling, and system coordination roles. Even newcomers looking at entry-level MEP technician roles can benefit from understanding how these drawings work.
Moreover, efficiency and accuracy are not just desirable but non-negotiable in large-scale MEP infrastructure projects, such as airports, hospitals, and shopping complexes. Here, detailed MEP drawings help teams meet tight deadlines, budget constraints, and quality standards.
Conclusion
In a world where construction projects are growing in complexity and scale, MEP drawings have emerged as the unsung heroes that hold everything together. From HVAC systems to fire safety plans, every element is meticulously planned and mapped out in these essential blueprints.
Also Read: How Project-Based Learning Helps You Build a Strong Portfolio for MEP Engineers
Whether you are an architect, engineer, technician, or someone exploring MEP jobs, understanding the types of MEP drawings and how they function will give you a solid footing in this ever-evolving field. With digital innovations like Revit MEP and other MEP software, the future of MEP in architecture and construction looks brighter, smarter, and more efficient than ever. So the next time you see a perfectly functioning building, take a moment to appreciate the detailed MEP drawings that made it all possible. After all, the magic lies in the blueprint!
We recommend exploring the BIM Professional Course for MEP engineers by Novatr. This program is ideal for professionals seeking to enhance their skills and stay updated with the latest industry technologies.
Visit our Resources Page to keep up with the latest industry trends.
Was this content helpful to you